ebisu cross
恵比寿クロス



































東京都渋谷区恵比寿に建つ、地下1階、地上3階、全9戸のコーポラティブハウスである。
敷地は恵比寿ガーデンプレイス近くのヒューマンスケールの残る住宅街にあり、東側前面道路に約4m幅の竿部分で接道する旗竿地である。
ここは弊社で設計した最初のコーポラティブハウス「恵比寿コートハウス」の1ブロック隣で、都市の利便性と、くすの木通りの街路樹をはじめとする緑豊かな環境の両方に恵まれている。
この環境を活かし、プライベート感ある落ち着いた都市住居でありながら、心地よい通風や採光が得られる伸びやかな空間を目指した。
そのため、敷地南側に共用の敷地内通路、北側に奥行2mのドライエリアを取り、その間にシンプルなL字形の建物を配置した。
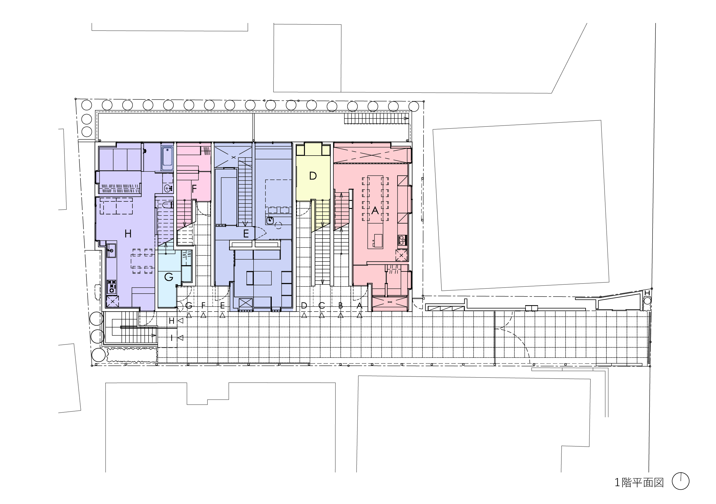
住戸タイプには、2種類のメゾネット(2-3階と地階-1階)とフラット住戸を設け、子育てファミリーから2人家族、単身者まで多様な世帯が共生できるバリエーションをもたせている。
2階と3階にまたがる4戸のメゾネットは、リビングやダイニングキッチンを南側に配置し、寝室などのプライベート空間は別フロアの北側に配した「クロスメゾネット」となっている。
この4戸はタワー状の階段室から屋上テラスに出られる、明るく開放的な住空間である。
一方、地階と1階にまたがる2戸のメゾネットは南北方向のスパンを全て使った2層で構成され、北側からの穏やかな光を採り込む落ち着いた空間となっている。
フラット住戸は1階と地階にあり、いずれも北側採光の落ち着いた住戸である。
いずれの住戸も計画段階から世帯ごとの要望をうかがい、個々の内装仕上や設備等のインフィルも全てd/dt Arch.で担当した。
9つの住空間が組み合わさった複雑な空間パズルを内包するファサードは、コンクリートとスチールサッシを主体にシンプルに構成されている。
アーキネットのコーポラティブハウスの魅力のひとつは、建築の設計段階から竣工まで将来の住民が設計者やコーディネーターと一緒になって共用部分の扱い等を決めていくので、入居する前からお互いの顔が見え、親しみが生まれていることである。
適度なプライバシーと穏やかな繋がりが得られるコーポラティブハウスで、ebisu crossのコミュニティが豊かに育まれていくことを期待している。
DATA
所在地 | 東京都渋谷区恵比寿 |
---|---|
主要用途 | 長屋(コーポラティブハウス全9戸) |
構造・構法 | RC造 一部 鉄骨造 |
階数 | 地下1階 地上3階 |
敷地面積 | 366.37m2 |
建築面積 | 197.24m2 |
延床面積 | 774.88m2 |
設計担当 | 武富恭美 |
---|---|
構造設計 | 梅沢建築構造研究所 |
設備設計 | 環境エンジニアリング |
施工会社 | 平成建設 |
撮影 | Nacasa & Partners |
竣工 | 2021年12月 |
備考 | コーポラティブハウス・プロデュース:アーキネット |